$775,000

5547 Berlin Way, Pittsburgh, PA 15201

Active #1722844
LawrencevillePittsburgh School DistrictAllegheny County
Condominium, Single Family, Townhouse3 Beds3 Baths0.02 Acres
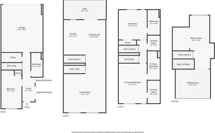
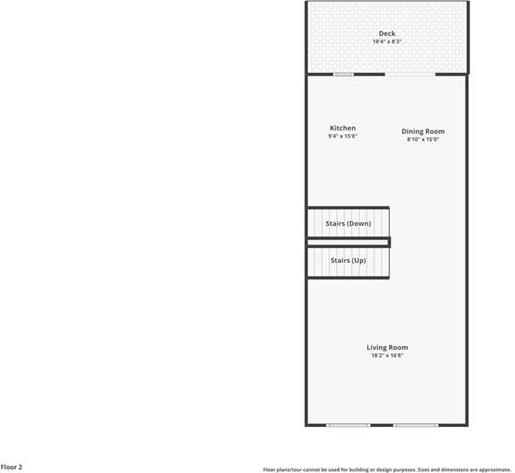
Discover a rare townhome in The Mews on Butler, offering more space & upgrades than most. This expanded floorplan with extra square footage, includes updated lighting, smart lights, a multi-zone audio system, stylish kitchen backsplash, & tasteful accent wallpaper. The entry floor provides a private bedroom with full bath & access to the 2-car garage. The main floor shines with open living & dining. The chef's kitchen features a large island, under-counter microwave, & sliding doors to a walk-out deck. Upstairs, the owner's suite boasts natural light, walk-in closet, & full bath with double vanity, while a second ensuite bedroom & hall laundry complete this level. The top floor is the showstopper"”an expanded mezzanine with wet bar opening to a private rooftop deck, perfect for entertaining or relaxing. Steps from Lawrenceville's dining, shopping, breweries, & galleries, with quick access to downtown Pittsburgh & major hospitals. Style, space, & upgrades unite for unmatched city living!
Presented By412 Properties
General Information
Lot Size Common
Public Transportation
Taxes $9,300
Exterior Features
Architecture Contemporary
Construction Brick, LookupError:HBD
Parking Integral Garage, 2
Roof Asphalt
Style 3 or More Stories
Subdivision Mews on Butler
Interior Features
Floors Ceramic Tile, Vinyl
Room Count 9
Included
Auto Door on Garage
Dishwasher
Disposal
Gas Stove
Kitchen Island
Microwave Oven
Refrigerator
Screens
Washer/Dryer
Window Treatments
Utilities
Cooling Central
Heating Gas, Forced Air
Sewage Public
Water Public

Rooms

Upper Level

  • Master Bed12x17

  • Bedroom12x13

  • Extra Room15x23

  • Laundry5x6

Main Level

  • Living Room18x17

  • Dining Room9x15

  • Kitchen9x15

Lower Level

  • Bedroom9x16

  • Entry5x10

Room sizes and locations are based on available info. Bathrooms and additional rooms may not be shown. Contact us for more detail.

Map

Drive Time Estimator

Add locations to calculate your drive time to this property.

Mortgage Estimator

principal + interest
$0
$
price
% down
$
loan
%
years
+
taxes
$775
$
taxes/yr
+
insurance
$0
$
ins./yr
=
monthly cost
$0
Total Monthly Cost

For more details, use our mortgage comparison and amortization tool.

This is an estimate which can be affected by your lender's rates, PMI requirements and other factors. For the most accurate information, contact a mortgage representative.

Listing courtesy of BERKSHIRE HATHAWAY THE PREFERRED REALTY

Information Herein is Deemed Reliable but Not Guaranteed

Make This Your Home!
Presented By412 Properties

I'd like to:

Email This Property

Fill out the form below to email this property to a friend!

Login
Register
Log In To Use This Feature

Log in to access your saved properties, easily request more information, get customized mortgage calculations and more! Or register a new account.

Register to Use This Feature

Creating an account allows you to save properties, easily request more information, get customized mortgage calculations and more!

Forgot Password

Enter your email address in the box below and click "Reset Password" to send an email with instructions to reset your password.